
Residence Renovation
✨INTERIOR DESIGN✨
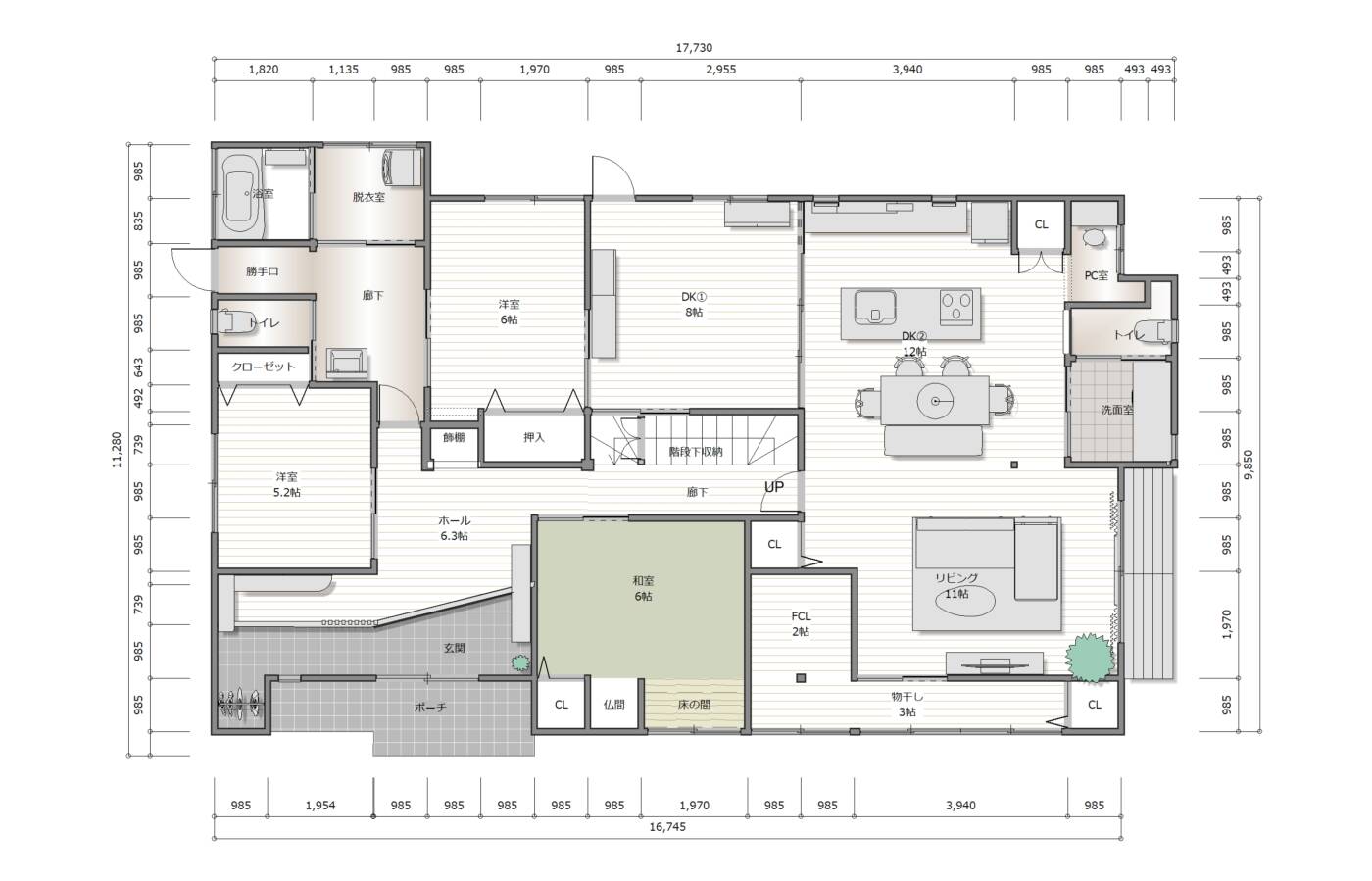
北欧ナチュラルモダンのインテリア💫広々とした大きなお屋敷。リノベーションのインテリアデザイン・コーディネートが遂に完成✨
お客様と何度も打ち合わせを重ね、平面レイアウトからプランニングさせて頂きました。太い大黒柱や大きな梁も、リノベならでは。空間に溶け込む意匠計画に📝
特注デザインのカップボード、洗面化粧台も…家具やカーテンに合わせて、内装空間のトータルコーディネート完成✨
春らしい…優しく淡いカラーを基調に施主様のご希望を詰め込みました😄
「理想の更にその先へ…」共に創造しましょう!
無限に広がる理想の空間を…💫


















